Price
Bank House, Bunsley Bank, Audlem, CW3
Crewe, CW3 0HS
No. of Bedrooms
4 Beds
No. of Bathrooms
3 Baths
Type of Property
Full Property Description
A STUNNING, WELL CRAFTED, DETACHED COUNTRY HOUSE ENJOYING FAR REACHING SOUTHERLY VIEWS OVER ROLLING COUNTRYSDIE TOGETHER WITH A CHARMING DETACHED BARN CONVERSION, OUTBUILDINGS AND LAND EXTENDING TO THREE ACRES, IN A WONDERFUL RURAL POSITION ABOUT ONE MILE FROM AUDLEM VILLAGE
DESCRIPTION
Bank House is constructed of brick with part rendered elevations under a tiled roof and approached through electrically operated gates over a sweeping gravel drive to a car parking and turning area. This is a truly captivating and rare opportunity to acquire a one-of-a-kind country house - a home of high quality, complemented by a fantastic detached two bedroom barn conversion and versatile outbuildings within three acres of grounds.
The key component for modern day family living is a kitchen/living/dining room and in this regard Bank House excels itself. The kitchen area by Harvest Interiors comprises a superb range of floor cupboards with granite worktops, wall cupboards, housemaids cupboard, island unit/breakfast bar and tiled flooring with underfloor heating to be found throughout the property. The room measures 43’2” x 18’5” and also features a Rangemaster Range, double integrated refrigerator and freezer and three sets of bi-folding door with internal blinds.
Whilst the needs of most families will be catered for in the house itself, Bank House also has the advantage of a fabulous annexe known as Bank House Barn. This, delightful, high specification conversion extends to about 800 feet and has been successfully holiday let over the last four years producing about £25,000 per annum.
The other two external features to note are the amazing far reaching rural views, which are spectacular and the land which makes Bank House an ideal home for those with equestrian or small stock keeping interests.
LOCATION & AMENITIES
Bank House is situated about one mile from Audlem village and half a mile from the Hamlet of Hankelow in an area of outstanding countryside. The sought after, award winning, village of Audlem caters for daily needs with local co-operative store, newsagent/general store, dry cleaners, butchers, flower shop, two restaurants, café, three public houses and a medical centre. Nantwich (6 miles), offers a more comprehensive range of services with high street retailers, banks, restaurants, leisure facilities and supermarkets. Crewe (10 miles) provides a fast intercity rail network (London Euston 90 minutes, Manchester 40 minutes). The M6 motorway (junction 16) is 12 miles and Manchester International Airport 40 miles.
On the educational front, there is a primary school in Audlem (Ofsted Good) and the house lies in the catchment area for Brine Leas High School/BL6 Sixth Form (Ofsted Good). Private schooling in the area includes Newcastle High School, The Grange at Hartford, The Kings and Queens in Chester and Ellesmere College.
There are numerous sports facilities in the area including tennis, bowling, cricket, football, running and cycling clubs in Audlem. There are two 18 hole golf courses at nearby Whitchurch. Equestrian interests are vast in the area including British Eventing at Kelsall and Somerford Park and racing enjoyed at Aintree, Chester, Bangor on Dee and Haydock Park.
DIRECTIONS
To find the property take the A525 South of Nantwich for about 5 miles into Hankelow, turn left by the White Lion Public House into Longhill Lane, proceed for 200 yards and turn right (signed Bunsley Bank), proceed for .7 of a mile and the property is located on the right hand side.
SUMMARY
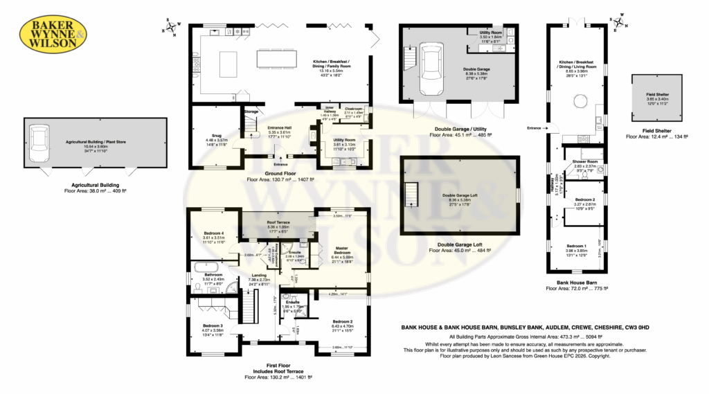
BANK HOUSE: Entrance Porch, Reception Hall, Kitchen/Living/Dining Room, Sitting Room, Cloakroom, Utility Room, Landing, Principle Bedroom with Ensuite Shower Room and Balcony, Bedroom No. 2 with Ensuite Shower Room, Two Further Bedrooms, Bathroom, Double Glazed Windows, Under Floor Heating.
BANK HOUSE BARN: Kitchen/Living/Dining Room, Inner Hallway, Two Bedrooms, Shower Room, Double Glazed Windows, Underfloor Heating.
Timber and Block Constructed Garage/Workshop with Room Above, Stable Yard, Agricultural Building, Field Shelter, Gardens, Three Paddocks of Pasture.
ENTRANCE PORCH
RECEPTION HALL
Feature light oak staircase to first floor, fireplace with Dimplex electric stove, open to kitchen/living/dining room.
KITCHEN/LIVING/DINING ROOM 43' 2" x 18' 3" (13.16m x 5.56m)
Three sets of bi-folding doors with internal blinds open onto the large deck overlooking the grounds and countryside beyond.
SITTING ROOM 14' 7" x 11' 7" (4.45m x 3.53m)
UTILITY ROOM 11' 9" x 9' 9" (3.58m x 2.97m)
CLOAKROOM
With W/C, vanity unit with inset hand basin
STAIRS FROM RECEPTION HALL TO FIRST FLOOR LANDING
With oak flooring, underfloor heating throughout the first floor.
PRINCIPLE BEDROOM 20' 9" x 18' 1" (6.33m x 5.51m)
Fitted wardrobes.
BALCONY 17' 6" x 6' 6" (5.33m x 1.98m)
Enjoying stunning South Westerly views over countryside.
ENSUITE SHOWER ROOM
Low flush W/C and vanity unit, inset hand basin, shower cubicle with shower and Hydro shower jets.
BEDROOM NO. 2 20' 10" x 15' 6" (6.35m x 4.72m)
Wardrobes.
ENSUITE SHOWER ROOM
Low flush W/C and vanity unit with inset hand basin, shower cubicle with shower and Hydro shower jets.
BEDROOM NO. 3 13' 4" x 11' 8" (4.06m x 3.56m)
Fitted wardrobes.
BEDROOM NO. 4 11' 10" x 11' 6" (3.61m x 3.51m)
BATHROOM 11' 6" x 7' 5" (3.51m x 2.26m)
Free standing bath, low flush W/C and vanity unit with inset hand basin, shower cubicle with shower and Hydro shower jets.
OUTSIDE
BANK HOUSE BARN (ANNEXE)
KITCHEN/LIVING/DINING ROOM 28' 3" x 13' 1" (8.61m x 3.99m)
Vaulted ceiling, beamed ceiling, Belfast sink, tiled floor with underfloor heating, three double glazed windows and French windows.
INNER HALLWAY
Tiled floor with underfloor heating.
BEDROOM NO. 1 12' 9" x 10' 6" (3.89m x 3.20m)
Vaulted beam ceiling.
BEDROOM NO. 2 10' 8" x 9' 5" (3.25m x 2.87m)
Vaulted beamed ceiling, exposed roof truss.
SHOWER ROOM 9' 4" x 7' 9" (2.85m x 2.36m)
Low flush W/C, vanity unit with inset hand basin, walk-in shower with rain head shower and hand held shower, airing cupboard.
GARDEN
Bank House Barn has its own garden comprising deck, lawn and a gravel seating area and pergola with hot tub. A timber and cavity block constructed, tiled roofed GARAGE/WORKSHOP 27'6" x 17'6" two pairs of double doors, staircase to room above 27'6" x 12'10". Utility Room 3.48 x 1.78, sink.
STABLE YARD/AGRICULTURAL BUILDING
To the east of the property there is a stable yard with power and water and a timber constructed box profile fibre roofed, agricultural building 35'0" x 12'6" with power, light and water. This building could easily be converted into Loose Boxes and a Tack Room.
GARDENS AND GROUNDS
The formal gardens are lawned with a large deck with ornamental fish pool and a kitchen garden. The gardens enjoy stunning Southerly views over rolling countryside towards Audlem Church. The principle paddock of pasture extends to the South with a post and rail, and hedgerow boundary. There are two smaller paddocks to the West with a field shelter and water.
SERVICES
Mains water, electricity. Septic tank drainage.
COUNCIL TAX
Band G.
TENURE
Freehold.
VIEWINGS
By appointment with Baker, Wynne & Wilson
Note: Floorplan to follow shortly.
Take a look around
Floorplans
Bank House, Bunsley Bank, Audlem, CW3
Interested in this
property?
Get in touch for further details on your dream home
Share this
property
If you think a friend or family might be interested in this property, share using one of the icons below.





















































































