Price
Monks Lane, Audlem, CW3
Crewe, CW3 0HP
No. of Bedrooms
4 Beds
No. of Bathrooms
3 Baths
Type of Property
Full Property Description
Comment by Mark Johnson @ Baker Wynne & Wilson. "A wonderful visual and physical flow of spaces" Conveniently positioned along a tranquil country lane approximately half a mile from the centre of Audlem Village lies this superb, detached individual home. Tucked away out of sight, on arrival Redwood quietly reveals itself in the form of its extraordinary rare aesthetic appeal. Modern light and sociable living spaces are complemented by the arched top oak doors which open directly onto the various terraces, all directly contributing towards a wonderful setting to enjoy coffees, long alfresco summer lunches, and evening sundowners. The professionally landscaped gardens form an integral part of the overall experience, ensuring the outside spaces are enjoyed as much as the luxurious interior. At the front there is a welcoming terrace for morning coffee, while at the back the stone patio can be used for al fresco dining. The garden is cocooned by greenery, interspersed with colour, raised beds, and features relaxing corners to rest, sit and mull.
NEARBY SCHOOLS
On the Educational front, there is a primary school in Audlem (Ofsted Good), and the house lies in the catchment area for Brine Leas High School/BL6 Sixth Form (Ofsted Good). Private schooling in the area includes Newcastle High School, The Grange at Hartford, The King's and Queen's in Chester and Ellesmere College. • Audlem St James' CofE Primary School 0.27 miles (Ofsted Good) • Adderley CofE Primary School 2.55 miles (Ofsted Good) • Sound and District Primary School 3.46 miles (Ofsted Good) • Bridgemere CofE Primary School 3.47 miles (Ofsted Good) • Wybunbury Delves CofE Primary School 3.87 miles (Ofsted Good) • Stapeley Broad Lane CofE Primary School 3.93 miles (Ofsted Outstanding) • Norton-in-Hales CofE Primary School 4.24 miles (Ofsted Good) • Weaver Primary School 4.34 miles (Ofsted Good) • St Anne's Catholic Primary School 4.57 miles (Ofsted Good) Secondary: • Brine Leas School Secondary 4.31 miles (Ofsted Good) Private schools in the area: • Newcastle High School • The Grange at Hartford • The King's and Queen's in Chester • Ellesmere College.
OUT AND ABOUT
Audlem is on the Shropshire Union canal, which has a run of 15 locks, designed by Thomas Telford to raise the canal 93 feet from the Cheshire plain to the Shropshire plain. The River Weaver passes West of the village. The sought after, award winning, village caters for daily needs with local co-operative store, post office, newsagents, dry cleaners, butchers, flower shop, restaurant, café, three public houses and a medical centre. There are numerous sports facilities in the area including tennis, bowling, cricket, football, running and cycling clubs in Audlem. There are two 18-hole golf courses at nearby Whitchurch Nantwich (7 miles) offers a more comprehensive range of services with High Street retailers, banks, restaurants, leisure facilities and supermarkets. Crewe station (11 miles) provides a fast intercity rail network (London Euston 90 minutes, Manchester 40 minutes). Whitchurch is 8 miles, Newcastle Under Lyme 15 miles, Chester, and Shrewsbury 25 miles, the M6 motorway (Junction 16) is 11 miles and Manchester Airport 40 miles.
DIRECTIONS TO CW3 0HP
What3words ///: firework.postcard.smuggled
THE TOUR
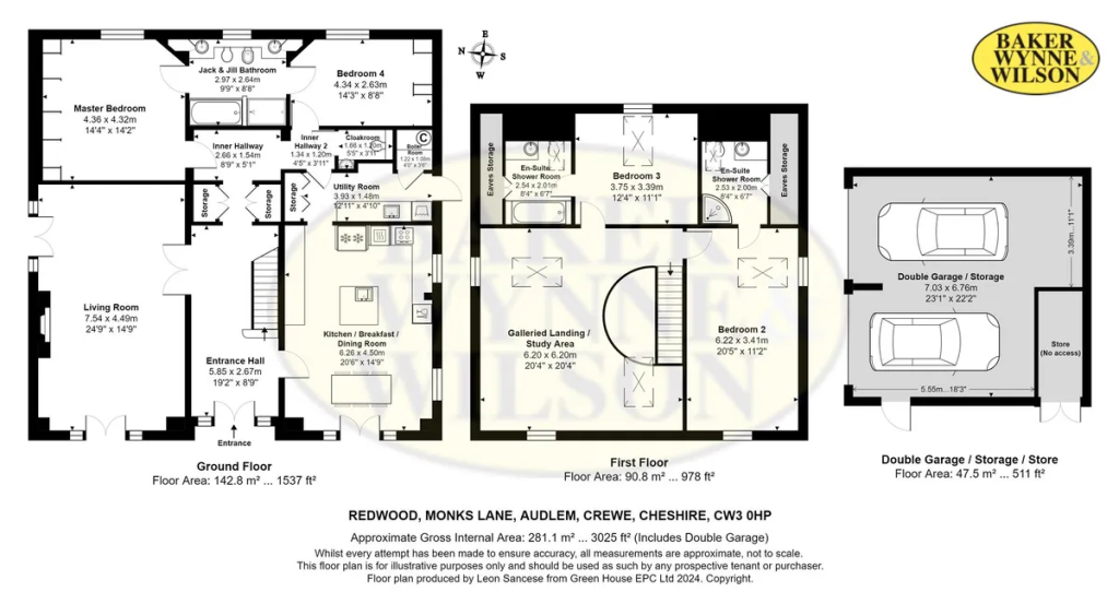
The internal accommodation extends to approximately 2515 sq. ft GIA. The garden furniture, ornaments etc are not included in the sale.
GROUND FLOOR
ENTRANCE HALL
Dimensions: 5.84m x 2.67m (19'2" x 8'9"). Oak entrance door with arched top and side widows, built in storage cupboard with oak doors, built in linen cupboard with alarm control box and shelving. Feature oak staircase with blackened wrought iron balustrade and handrail rising to the first floor.
LIVING ROOM
Dimensions: 7.54m x 4.50m (24'9" x 14'9"). Arched top double oak doors from the hall, two matching oak framed external doors and opening windows, built-in bookcase, built in painted book shelves/TV stand, ceiling pelmet lighting. Faber log effect gas fire, various picture wall light points.
DOWNSTAIRS CLOAKROOM
Dimensions: 1.65m x 1.19m (5'5" x 3'11"). Concealed cistern W/C. Vanity wash hand basin.
MASTER BEDROOM NO. 1
Dimensions: 4.37m x 4.32m (14'4" x 14'2"). Built-in open plan wardrobe storage space with hanging and shelving provision, ceiling pelmet and spot lights, oak arch top window overlooking the delightful rear garden.
JACK & JILL BATHROOM/SHOWER
Dimensions: 2.97m x 2.64m (9'9" x 8'8"). Connecting to Bedroom No. 2. Double Matki sliding screen door enclosure with wet wall finish and overhead and jet shower. Deep sunken panel bath with wall mounted mixer tap and chrome heated towel radiator over, enclosed cistern W/C, bidet, his and hers vanity bowl sinks with towelling shelves beneath, twin basin mirrors with lights over, two built in medicine cabinets.
BEDROOM NO. 2
Dimensions: 4.34m x 2.64m (14'3" x 8'8"). Built in open plan wardrobe storage space with hanging and shelving provision, ceiling pelmet and spot lighting, oak arch top window overlooking the delightful rear garden.
KITCHEN/BREAKFAST/DINING ROOM
Dimensions: 6.25m x 4.50m (20'6" x 14'9"). Custom made limed oak units/cabinets to three elevations providing base drawers and cupboards, central island with under mounted sink, waste disposal, shelving, cutlery drawer, eye level cabinets, stone worktops, space for large dining table, ceramic tile floor. Fitted appliances include: Siemens warming drawer, Siemens microwave and oven, Siemens ceramic hob with canopy over, Miele built-in dishwasher, oak arched top window plus two side windows feature matching to the the three front openings, space for American style fridge (negotiable), wall TV point.
UTILITY ROOM
Dimensions: 3.94m x 1.47m (12'11" x 4'10"). Fitted furniture and space for domestic appliances. Cloaks recess with cupboards above, built in double China/drinks storage cupboard with oak bifold doors, continuation of stone worktops and fitted oak units beneath. Undermounted stainless steel sink unit, space for domestic appliances, exterior stable door, cupboard with Firebird oil fired boiler, pressurised cylinder to underfloor heating, water softener.
FIRST FLOOR
978ft2 (90.8m2). Note: Element of restricted head room.
SITTING ROOM
Dimensions: 5.28m x 5.33m (17'4" x 17'6"). The corner section of an apex roof with four opening window lights (two motorised Velux skylights), semi circular open feature balustrade, fitted shelves, two radiators, ceiling spot lights, access to loft.
BEDROOM NO. 3
Dimensions: 3.73m x 2.49m (12'3" x 8'2"). Two radiators, motorised Velux and opening window, mono pitched ceiling.
ENSUITE BATHROOM
Vanity wash hand basin with circular basin, enclosed cistern W/C, panel bath, Velux, chrome heated towel rail, under-eaves storage.
BEDROOM NO. 4
Dimensions: 5.33m x 2.51m (17'6" x 8'3"). Radiator, mono pitched roof, three Velux opening sky lights (one motorised).
ENSUITE SHOWER ROOM
Curved screen cubicle with thermostatic shower and wet wall finish Grohe hand held shower hose, chrome radiator, enclosed cistern W/C, vanity wash hand bowl with shelving beneath, under eaves storage.
EXTERNALLY
Shared entrance with Unicorn House leading to motorised entrance gates controlled by remote control and keypad. The drive leads up to attached cement rendered elevation double garage with a tiled roof and extensive driveway parking. The Garden has meticulously detailed hard and soft landscaping with a variety of seating areas, a water feature in the form of a rill, pathways, steps, raised borders, mature shrubs, trees, and flowering plants. Two exterior cold water taps, external power point, landscaped spot lights, LPG gas provision, garden shed, exterior lights with sensors, oil storage tank. The property adjoins open farmland.
TENURE
Freehold.
COUNCIL TAX
Band G.
SERVICES
Mains water, electricity. Private drainage system. Smart electricity meter. GF under floor heating. oil fired central heating N.B. Tests have not been made of electrical, water, drainage and heating systems and associated appliances, nor confirmation obtained from the statutory bodies of the presence of these services. The information given should therefore be verified prior to a legal commitment to purchase.
VIEWING
By appointment with Baker Wynne and Wilson. 01270 625214
Take a look around
Floorplans
Interested in this
property?
Get in touch for further details on your dream home
Share this
property
If you think a friend or family might be interested in this property, share using one of the icons below.










































